Understanding the needs of the library user is crucial to activating a space and developing a digital library. During library activity planning, we work with the community to improve the overall functioning of a library. Aaron Cohen Associates, LTD analyzes the user space design, which helps our clients identify the furnishings involved in delivering the library services effectively.
Identify Services
We work with our clients to identify library services and plan for the future. Our library planning may include technology or physical space requirements specifications. Certainly, our library planning workshops make an impact on the design process. It includes identifying the different services offered.
Analyze Libraries
Analyzing library workflows and exploring the interactions between users, staff, and external parties is a valuable step. We work with our clients to understand and improve the process flow within a modern library. On September 15, 2023, join us to gain insights into the current library operations and identify areas where enhancements can be made.
Library Workshop
Join us on September 15, 2023 Full Day Steelcase Workshop in New York City. Workshop Participants will have the opportunity to collaborate and tap into our expertise. Together we will analyze what contributing factors creates a modern library space, services and technology. Certainly, the knowledge gained from the Steelcase workshop can be applied to identify areas for improvement and drive innovation within library operations.
Overall, the workshop promises to be a valuable platform for professionals in interior design, library services, and technology to come together, exchange ideas, and work towards creating a more efficient and user-friendly modern library.
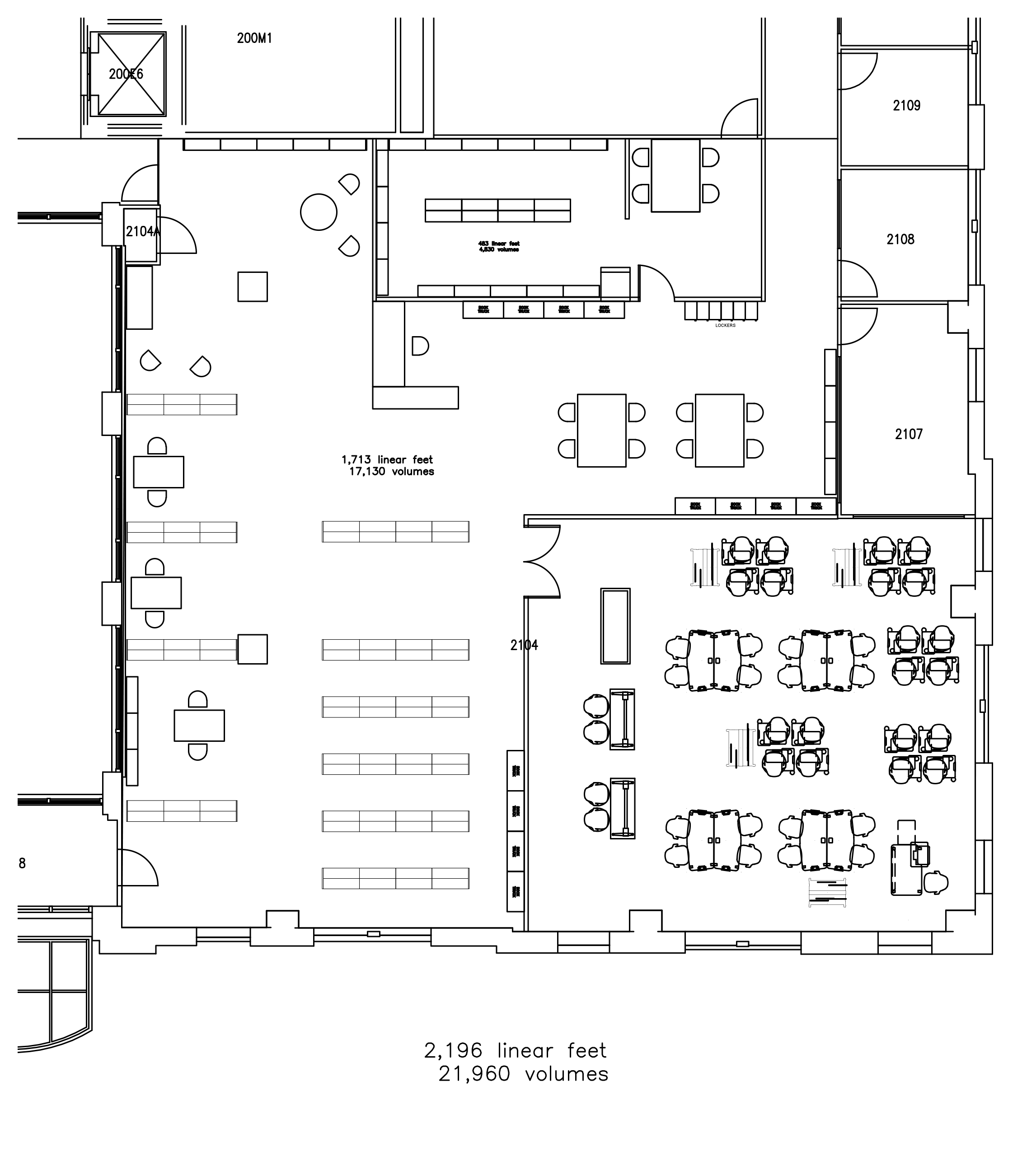
Basically, our workshop activities help build partnerships for funding opportunities. For example, our library planning workshops address flexible space, book borrowing space, reference and circulation points. We help our clients new types of collection search hubs and library meeting spaces of all kinds. Our characterization workshops enable the community to Ven diagram out their vision of the library.
In addition to analyzing workflows, we will be exploring furniture options and considering the physical space within the library is crucial for creating an environment that supports the needs of library users. Incorporating technology into the design is a strength of Steelcase design. For example, how can we leverage this learning to enhance the overall library experience and streamline various processes?
Design Thinking
Providing a clear description for each use case, explaining its purpose, benefits, and objectives is a key step to improvements. We help our clients describe their needs, which helps us outline the service’s value proposition and its contribution to the overall library experience.
Considering the perspectives of power users and non-users, such as library patrons, staff members, and partners, when analyzing the library facility will result in a productive plan. We help our clients understand the specific user needs, expectations, and pain points for the library.
When we engage with library administrators, librarians, IT developers, and other stakeholders to gather feedback we improve the outcomes of the project. The development of a facilities workflow with use case descriptions helps us define the priorities as well as the functionality of the physical library. We iteratively refine the interior design models based on the insights gained from each user group.
Library Technology
Conducting user analysis and understanding the workflow should precede the development of an open source library project. User analysis helps in identifying the requirements and needs of the library users, which can then inform the development of the open source library. This approach ensures that the library system addresses the actual user needs and aligns with the workflows defined through the analysis process. Library technology planning click here for more articles from the Library Incubator.
Web Junction
Web Junction provides a good overview of open source software. If you are working on a new library, start here to learn more about the library systems and requirements.
Below are strategies to start a digital library.
Name
Name: A descriptive name that clearly identifies the purpose or functionality of the service.
Example: “Borrowing Books,” “Reference Assistance,” “Online Catalog Search.”
Description
An explanation of the library service, detailing what it aims to achieve and how it benefits the users.
Example: “Borrowing Books: This use case allows library patrons to check out physical books for a specific duration, providing access to a wide range of reading materials.”
Performance Goals
Specific objectives or targets that the service aims to meet in terms of efficiency, accuracy, response time, or other relevant metrics.
Example: “Borrowing Books: The service should process book checkouts within 2 minutes, maintain an accuracy rate of 99% in tracking borrowed items, and handle concurrent requests from multiple users.”
Library Operations
A step-by-step sequence of actions that describes how the service is performed and the space required. This includes interactions between users and the library.
Example workflow for “Borrowing Books”
a. User presents their library card and selected books at the circulation desk.
b. Library staff scans the library card and books using the integrated system.
c. The system verifies the user’s eligibility and available copies of the books.
d. If eligible and books are available, the system updates the user’s account and prints due date slips.
e. The user receives the due date slips and the borrowed books.
Aaron Cohen Associates, LTD Contact Us.
 
				



 
 